info checkmark circle
Última actualización: 12 de febrero, 2026

Pallars 193

Precio: 19-20 €/m²/mes
Gastos: 5,70 €/m²/mes
Superficie disp: 3.775 m²
Terraza: Sí ( m²)

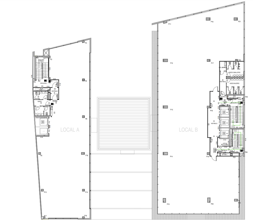
Plantas

Planta: 1
Precio: 14.345 €/mes
Superficie: 755 m²

Diafana

Planta: 3
Precio: 14.345 €/mes
Superficie: 755 m²

Diafana

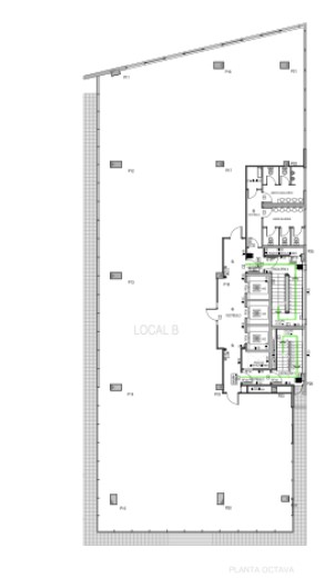
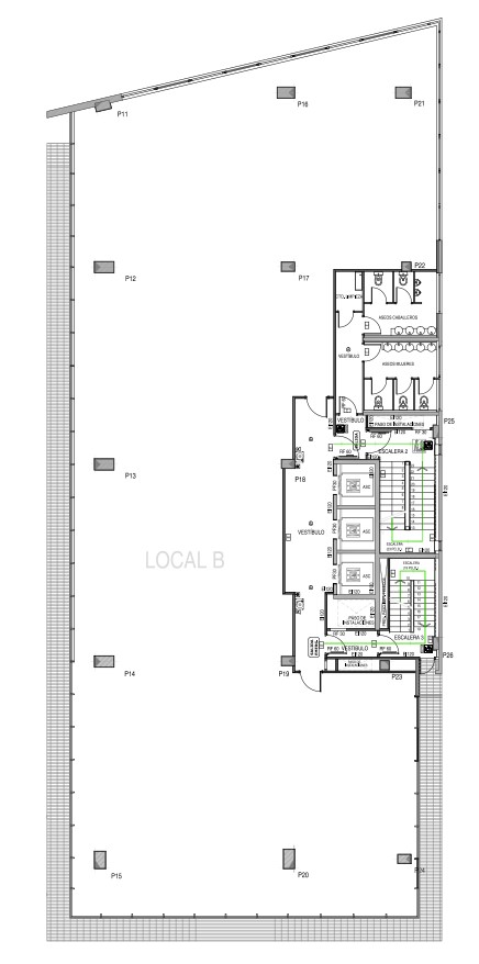
Planta: 5
Precio: 14.345 €/mes
Superficie: 755 m²

Oficina implantada

Planta: 6
Módulo: A
Precio: 7.320 €/mes
Superficie: 366 m²

Oficinas implantada

Planta: 6
Módulo: B
Precio: 7780 €/mes
Superficie: 389 m²

Diafana

Descripción

Edificio de oficinas rehabilitado en pleno corazon del distrito tecnológico del 22@.

Con una superficie de más de 12.000 m², Pallars 193 se compone de dos edificios unidos a través de un núcleo central en la planta baja, ofreciendo espacios de trabajo colaborativos para aquellas empresas que busquen establecerse en un entorno dinámico. Cuenta con más de 1.000 m² de jardín en planta baja, zona de eventos y de encuentro con ágora, pérgolas, zona Wellness y de meditación y cascada natural.

Tiene una sala polivalente y vestuarios con duchas.

Ratio de ocupación 1:10

El edificio cuenta con 216 plazas de parquin de coche, 71 plazas de motos y parquin de bicicletas y patinetes

Trasteros: Precio del aquiler 7€/m2

Modelo de certificación: Breeam Very Good.

Galería de imágenes

Ubicación

Otros espacios

Les Rambles 124

Solicita más información

Otros espacios

Les Rambles 124